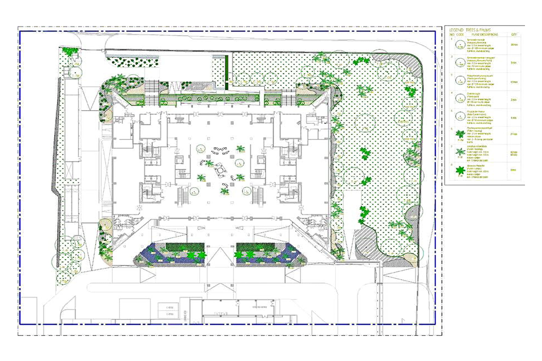
Asean Secretariat Office Park

Project Overview
- Project Title : Asean Secretariat Office Park
- Type of Work : Design & Build
- Site Area : ± 5.074 m2
- Location : Kebayoran Baru, South Jakarta
- Client : PT PP (Persero)
- Project Year : 2018 -2019
A Landscape Feature is a distinctive element in a garden or park designed to enhance its aesthetic appeal and functionality. This can include water features like ponds, fountains, or waterfalls; structural elements such as pergolas, gazebos, or bridges; and artistic installations like sculptures or mosaics. Each feature is thoughtfully integrated into the landscape to create focal points, improve usability, and enrich the overall experience for visitors.